Ontario’s Tiny Township has long been the destination for camping and cottaging due to its prime location on the shores of Georgian Bay, filled with pristine natural landscapes and charming local communities. When Quality Homes’ very own Site Team member, Robin, and her partner Nelson decided to purchase a new cottage, they fell in love with Tiny right away. Deciding to buy a cottage comes with many questions, but as a Quality Homes employee, Robin had the inside scoop on the most important one of all—to buy, or to build?
“We were drawn to Quality Homes because they are quality built homes manufactured in a state-of-the-art facility with climate-controlled conditions and no weather-related setbacks.”
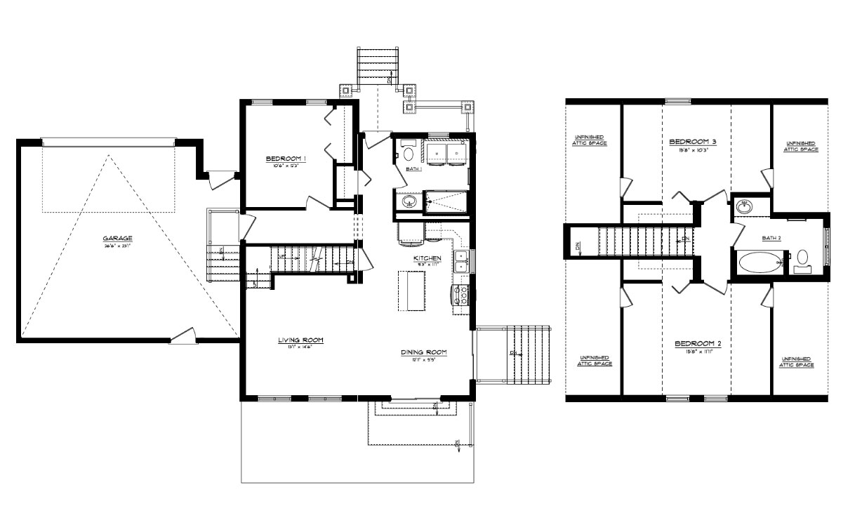
After finding the perfect lot—a beautiful tree-lined property close enough to neighbours for a sense of community, but separate enough for privacy—Robin and Nelson connected with the Quality Homes Team to find the cottage design that worked best for their needs. It was a difficult choice, torn between several designs on matters of aesthetics and functionality, but Quality Homes is an expert at custom building! The solution was simple: a custom Haliburton model with an attached garage, with a unique exterior modified to reflect the Summerside.


















